

Deux agences à votre service à Dives sur mer
Partager sur
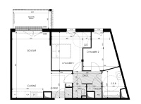
Uniquement à l'agence du port ! Appartement de 3 pièces à proximité immédiate de Port Guillaume et du centre-ville de Dives/Mer. Au deuxième étage avec ascenseur, appartement 3 pièces de plain-pied comprenant : Entrée avec placard, séjour avec cuisine ouverte livrée aménagée et équipée, deux chambres dont une avec placard, salle de bains avec pare-baignoire et colonne de rangement, dégagement, cellier avec pompe à chaleur et lave-linge, WC. Jolie vue dégagée sur la baie. Place de parking privative. Local vélo privatif. Belle opportunité. Les informations sur les risques auxquels ce bien est exposé sont disponibles sur le site géorisque : www.georisques.gouv.fr
Code postal 14160
Surface habitable (m²) 64,92 m²
Surface loi Carrez (m²) 64,92 m²
Nombre de chambre(s) 2
Nombre de pièces 3
Etage 2
Nombre de niveaux 1
Ascenseur OUI
Nb de salle de bains 1
Cuisine AMERICAINE
Type de cuisine EQUIPEE
Mode de chauffage Pompe à chaleur
Type de chauffage Radiateur
Format de chauffage Individuel
Balcon OUI
Terrasse NON
Murs mitoyens 2
Cave OUI
Nombre de parking 1
Exposition NORD-OUEST
Année de construction 2025
Quartier Dives-sur-Mer
Copropriété OUI
nombre de lots 47
statut du syndic pas de procédure en cours
Prix de vente honoraires TTC inclus 322 400 €
Prix de vente honoraires TTC exclus 309 000 €
Honoraires TTC à la charge acquéreur 4,34 %
* : Les informations recueillies sur ce formulaire sont enregistrées dans un fichier informatisé par La Boite Immo agissant comme Sous-traitant du traitement pour la gestion de la clientèle/prospects de l'Agence / du Réseau qui reste Responsable du Traitement de vos Données personnelles.
La base légale du traitement repose sur l’intérêt légitime de l'Agence / du Réseau.
Elles sont conservées jusqu'à demande de suppression et sont destinées à l'Agence / au Réseau.
Conformément à la loi « informatique et libertés », vous pouvez exercer votre droit d'accès aux données vous concernant et les faire rectifier en contactant l'Agence / le Réseau.
Si vous estimez, après avoir contacté l'Agence / le Réseau, que vos droits « Informatique et Libertés » ne sont pas respectés, vous pouvez adresser une réclamation à la CNIL.
Nous vous informons de l’existence de la liste d'opposition au démarchage téléphonique « Bloctel », sur laquelle vous pouvez vous inscrire ici : https://www.bloctel.gouv.fr
Dans le cadre de la protection des Données personnelles, nous vous invitons à ne pas inscrire de Données sensibles dans le champ de saisie libre
Ce site est protégé par reCAPTCHA, les Politiques de Confidentialité et les Conditions d'Utilisation de Google s'appliquent.